Porzione di bifamiliare in vendita

Santa Marinella, Via Velca - Santa Marinella Nord
€ 369.000
5 locali 5 locali
135 Mq 135 Mq
2 bagni 2 bagni

Porzione di bifamiliare in vendita

Santa Marinella, Via Velca - Santa Marinella Nord

Descrizione annuncio

SANTA MARINELLA - BAIA DI PONENTE

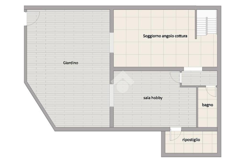
In una zona tranquilla e ben servita, la Tecnocasa di Santa Marinella propone in vendita una porzione di bifamiliare di 135 mq, caratterizzata da spazi ampi, funzionali e rifiniture di pregio.

L’immobile si sviluppa su due livelli collegati da una scala interna e una scala esterna.

Al piano terra si trova la zona giorno, luminosa e accogliente, composta da un’ampia cucina abitabile, ideale per chi ama cucinare e vivere la casa. Adiacente un soggiorno spazioso dotato di angolo bar, perfetto per momenti di convivialità e relax, un bagno con box doccia finestrato, un ripostiglio ed un giardino pavimentato di circa 60 mq, ideale per pranzi all’aperto, serate con amici o per creare un’area verde privata.

Al primo piano si trova la zona notte, composta da una camera matrimoniale, una camera media e una cameretta ed infine un bagno finestrato con box doccia . Le camere affacciano su un terrazzo di 24 mq, che offre uno spazio esterno riservato e soleggiato.

L’immobile è accessoriato di riscaldamento autonomo, condizionatore caldo/freddo, camino, persiane d’acciaio ed infissi pvc doppio vetro , presente anche un locale tecnico adibito a lavanderia.

L’appartamento è ideale per famiglie o coppie che desiderano vivere in una casa confortevole e spaziosa.

Altro punto a favore è la possibilità di creare due appartamenti grazie alla scala esterna.

Mostra tutto

Nelle vicinanze

Trasporto pubblico Trasporto pubblico
stazione di Santa Marinella
stazione di Santa Marinella
2,4 Km
Trasporto pubblico
3,0 Km
Scuole Scuole
Scuola dell'infanzia San Benedetto
950 m
Scuola dell'Infanzia "Santa Teresa di Gesu' Bambino"
990 m
Scuole
1,0 Km
Scuola Media Statale "Giosuè Carducci"
1,7 Km
Scuola Elementare e materna statale "Centro"
2,7 Km
Farmacia Farmacia
Farmacia
1,3 Km
Ospedali Ospedali
Ospedale Bambin Gesù
1,5 Km
Supermercati Supermercati
Pam
160 m
Todis
770 m
Tigre
1,0 Km
CARREFOUR EXPRESS
1,1 Km
ELITE
1,3 Km
Negozi Negozi
Negozi
710 m
CIA Diffusione Abbigliamento
2,0 Km
Scarpamondo
2,0 Km
Bar Bar
Bar
150 m
Maiorca
720 m
Chiosco Bar di Frinchillucci
1,2 Km
Caffè Bar - La Gatta a Mare
1,2 Km
La Sirenetta
2,1 Km
Ristoranti Ristoranti
Mikonos
310 m
Ristoranti
710 m
"Ristorante Fernanda"
890 m
Mare Sole
1,2 Km
Bar Ristorante Angeletto
1,2 Km
Mostra tutto

Caratteristiche

Rif.:
61129067
Piano:
2 di 1 (Piano rialzato)
Terrazzi:
1
Camere da letto:
3
Arredamento:
Assente
Condizionamento:
Autonomo
Mostra tutto
Prezzo Prezzo
€ 369.000
Rata mutuo Rata mutuo
€ 1.739 / mese
Spese annue Spese annue
€ 0
Proponi il tuo prezzoProponi il tuo prezzo
Immobile valutato con T·Valuta

Classe Energetica

G
G
G
G
G
G
G
G
G
EP globale non rinnovabile:
23099.00 kW h/m² anno
EP globale rinnovabile:
4238.00 kW h/m² anno
EP invernale del fabbricato:
EP estiva del fabbricato:
Anno di costruzione:
2001
Riscaldamento:
Autonomo
Tipo impianto:
A radiatori
Tipo alimentazione:
Metano

Ti interessa visionare l'immobile?

Fissa un appuntamento  Fissa un appuntamento

Richiedi informazioni

Clicca su Leggi per aprire l'informativa
* Questi campi sono obbligatori

Calcola il tuo mutuo

Semplice e senza impegno
Anticipo

( % )
Mutuo

( % )

pochi semplici passi

inserisci i tuoi dati
Questionario completato
Grazie per aver richiesto un appuntamento senza impegno con un nostro Consulente del Credito e Assicurativo.

Hai inserito correttamente tutti i dati necessari e a breve riceverai una e-mail con un link da convalidare per inviare i tuoi dati.
Affiliato
Contese Srl
Via Aurelia, 287 00058 Santa Marinella (RM)

Il nostro staff


  • Andrea Cirina
    Collaboratore

  • Sonia Favoriti
    Coordinatrice

  • Simone Pappalardo
    Collaboratore

  • Andrea Tremante
    Collaboratore

  • Manuel Conti
    Affiliato
Via Aurelia, 287 00058 Santa Marinella (RM)
Zona: Santa Marinella
Mostra su mappa
Affiliato
Contese Srl
Via Aurelia, 287 00058 Santa Marinella (RM)

2026 Tecnocasa Franchising S.p.A. - P. IVA 08365160152 - Via Monte Bianco 60/A 20089 Rozzano (MI). Ogni agenzia ha un proprio titolare ed è autonoma. Privacy policy | Policy utilizzo | Cookie policy